0 Down Financing With Land! Call Us Today To Learn More!

Eagle / 28483C

3D tour

floor plan

details

Manufactured

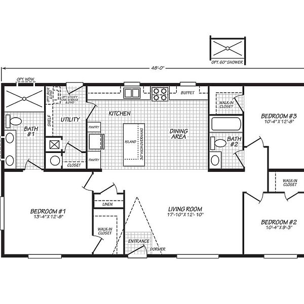
BEDS: 3     BATHS: 2.00     SQ FT: 1279     W X L: 28′ 0″ x 48′ 0″

BUILT BY: Cavco Woodburn

The Eagle / 28483C built by Cavco Woodburn offers a bright and welcoming layout with 3 bedrooms, 2 bathrooms, and 1279 square feet. The open kitchen and dining area sit at the heart of the home, giving you plenty of space to cook and gather. Each bedroom has easy access to storage, and the living room feels warm and inviting. The 28483C brings comfort and simplicity together in a home you’ll enjoy every day.

have a question about this home?

floor plan specifications

Floor Decking: 4'x8' x19/32" tongue and groove OSB
Floor Joists: 2x6 16" O.C.
Roof Load: 20 Lbs
Roof Truss: 24" O.C.
Side Wall Height: 96" Flat Ceiling
Insulation (Floors): R11
Insulation (Walls): R11
Insulation (Ceiling): R21
Dormer: Standard
Front Door: 36" Inswing with deadbolt knocker and peephole
Rear Door: 32" Inswing with deadbolt
Roof Pitch: 3/12
Shingles: Architectural with Limited Lifetime Warranty
Siding: LP Smartside Panels
Window Trim: Faux Shutter Painted FDS 4" trim all others
Window Type: Low-E Vinyl Windows with Argon Gas
Exterior Lighting: At Front and Back Doors
Electrical Service: 200 AMP
Water Heater: 30-Gallon Electric Standard / 50-Gallon optional
Bathroom Sink: Acrylic
Bathroom Lighting: Recessed can lights - optional Cosmetic light
Bathroom Flooring: Lino
Bathroom Backsplash: 4" Laminate
Bathroom Bathtubs: 60" Acrylic tub with 3 piece Surround and shower head
Kitchen Sink: 8" Deep Stainless Steel
Kitchen Refrigerator: 18 CF Frost Free
Kitchen Range Type: 30" Electric with window and clock
Kitchen Range Hood: 30" Black
Kitchen Lighting: Recessed LED can lights
Kitchen Flooring: Lino
Kitchen Faucets: Dual Handle Chrome
Kitchen Countertops: Laminate
Kitchen Backsplash: 4" Laminate
Interior Doors: 2 or 6 White Raised Panel
Interior Lighting: LED can light

tours and videos

gallery

PLEASE NOTE:

All sizes and dimensions are nominal or based on approximate builder measurements. 3D Tours and photos may include dealer and/or factory installed options. Wilder Affordable Homes reserves the right to make changes due to any changes in material, color, specifications, and features at any time without notice or obligation.

popular floor plans

ManufacturedFeatured

Sandpointe / SP28403A

Built by: Cavco Woodburn
Beds: 3
Baths: 2.00
Sq Ft: 1066
W x L: 26'8" x 40'0"
ManufacturedFeatured

Eagle / EG28523P

Built by: Cavco Woodburn
Beds: 3
Baths: 2.00
Sq Ft: 1333
W x L: 26'8" x 52'0"
ManufacturedFeatured

Evergreen / EV28502E (3 Bedroom)

Built by: Cavco Woodburn
Beds: 3
Baths: 2.00
Sq Ft: 1333
W x L: 26'8" x 50'0"