0 Down Financing With Land! Call Us Today To Learn More!

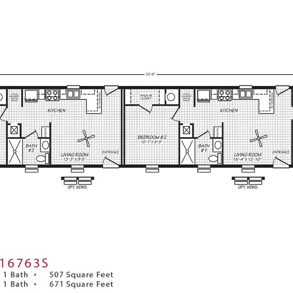
Anthem / The Blue Ridge AY16763S Duplex

3D tour

floor plan

details

ManufacturedMulti-Family

BEDS: 3     BATHS: 2.00     SQ FT: 1178     W X L: 16′ 0″ x 76′ 0″

BUILT BY: Cavco Woodburn

The Anthem / The Blue Ridge AY16763S Duplex built by Cavco is a versatile multi-family manufactured home designed for convenience and efficiency. Each half of this 1,178-square-foot duplex offers comfortable living, with one side featuring 2 bedrooms and 1 bathroom, while the other includes 1 bedroom and 1 bathroom. Ideal for extended families or rental opportunities, The Blue Ridge AY16763S Duplex combines smart design with modern comfort.

have a question about this home?

floor plan specifications

No specification data available

tours and videos

gallery

PLEASE NOTE:

All sizes and dimensions are nominal or based on approximate builder measurements. 3D Tours and photos may include dealer and/or factory installed options. Wilder Affordable Homes reserves the right to make changes due to any changes in material, color, specifications, and features at any time without notice or obligation.

popular floor plans

ManufacturedFeatured

Sandpointe / SP28403A

Built by: Cavco Woodburn
Beds: 3
Baths: 2.00
Sq Ft: 1066
W x L: 26'8" x 40'0"
ManufacturedFeatured

Eagle / EG28523P

Built by: Cavco Woodburn
Beds: 3
Baths: 2.00
Sq Ft: 1333
W x L: 26'8" x 52'0"
ManufacturedFeatured

Evergreen / EV28502E (3 Bedroom)

Built by: Cavco Woodburn
Beds: 3
Baths: 2.00
Sq Ft: 1333
W x L: 26'8" x 50'0"